O layout de farmácia é um fator crucial para o sucesso de qualquer estabelecimento comercial. A disposição dos produtos pode influenciar diretamente na experiência de compra do cliente e, consequentemente, nas vendas.
No entanto, os proprietários enfrentam desafios na hora de escolher o layout de farmácia adequado para o seu negócio, desde a falta de espaço, até a necessidade de cumprir normas regulatórias.
Muitos questionamentos surgem antes de abrir ou reformar uma farmácia, como “qual o tamanho ideal”, ou como organizar cada setor. Dessa forma, a Arquiter elaborou um guia completo de layout de farmácia para tirar todas as suas dúvidas, mesmo que o seu projeto seja pequeno, médio ou grande. Vamos lá?
O que é o layout de uma farmácia?
O layout de uma farmácia refere-se a forma como todos os elementos internos são distribuídos: mobiliário, gôndolas, balcões, caixas, espaços de circulação, áreas técnicas, exposições de produtos, áreas de vacinação, entre outros.
Um bom projeto de farmácia permite, principalmente, que o cliente encontre os produtos de forma rápida e fácil, melhorando a experiência de compra. Além disso, uma disposição adequada dos produtos pode incentivar compras adicionais, aumentando as vendas e o ticket médio.
Essa estratégia no projeto de arquitetura também influencia a percepção do cliente sobre a qualidade dos produtos e da marca da farmácia. E o contrário também ocorre: sem planejamento, a farmácia perde vendas, cria gargalos e dificulta toda a operação.


Dores e desafios enfrentados pelos proprietários de farmácias na hora de escolher o layout
- Necessidade de cumprir normas regulatórias, como a Anvisa e o Conselho Regional de Farmácia;
- Dificuldade de lidar com o espaço limitado;
- Dificuldade de destacar os produtos em meio a um grande número de itens e categorias;
- Falta de conhecimento em arquitetura comercial e design.
Como deve ser a organização de uma farmácia?
1. Planejamento
Bem, agora que você já identificou como um layout de farmácia ode ajudar com suas dores, vamos a parte de planejamento. Ela é o pontapé inicial para chegar ao seu objetivo em sua empresa.
Ao planejar o layout de farmácia, precisamos levar em conta diversos fatores, como a disposição dos produtos, a circulação dos clientes, a iluminação, a climatização, entre outros.
Cada detalhe deve ser pensado de forma estratégica, a fim de proporcionar a melhor experiência possível aos clientes e, consequentemente, aumentar as vendas.


Como benefícios desse planejamento podemos conseguir vários resultados como:
- Encontrar soluções criativas e inteligentes para lidar com o espaço limitado e as normas regulatórias. O planejamento também é fundamental para atender às exigências legais, como alvará de funcionamento, inspeção do local e vigilância sanitária. Para dessa forma evitar problemas futuros;
- Um projeto de farmácia bem planejado pode destacar os produtos e incentivar compras adicionais, aumentando as vendas;
- A disposição adequada dos produtos e a identidade visual da farmácia podem fortalecer a marca e fidelizar os clientes;
- Um projeto em layout de farmácia bem planejado pode diferenciar a farmácia da concorrência, tornando-a uma referência no mercado.
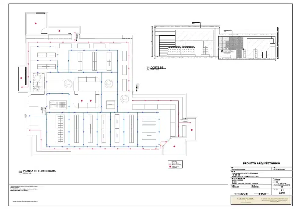
2. Fluxos de circulação (layout e fluxograma para farmácias)
O fluxograma é o estudo do caminho que seu cliente e colaboradores fazem dentro da sua farmácia. Mas qual a importância desse estudo?
Bem, já posso adiantar que é enorme. Através desse estudo podemos prever e estudar o caminho que o seu cliente vai fazer em seu estabelecimento e o caminho que queremos que ele faça!
Mas qual o propósito disso? Vender mais! Com estudo de sua curva ABC podemos identificar quais são os produtos que têm mais saída em sua farmácia, assim como quais tem melhor ticket médio.
Dessa forma iremos organizar as gôndolas, por direção, modelo e alturas para conseguir o resultado esperado. Assim seu cliente vai fazer exatamente o trajeto desejado e passar por produtos e destaque que planejamos.
Esse é um dos elementos para chegar ao resultado do seu desejado aumento de faturamento.
Descubra em uma conversa rápida como a arquitetura comercial pode aumentar em até 30% suas vendas.
Preencha os dados abaixo para receber um orçamento personalizado para seu projeto:

É nessa etapa também que definimos qual o tipo de atendimento a farmácia pretende trabalhar. Auto atendimento, atendimento personalizado ou misto. É desse ponto que parte a estratégia de lançamento em layout.
De nada adianta um objetivo de autoatendimento com um layout de farmácia com atendimento personalizado, você não conseguirá chegar ao resultado esperado e irá ter a errônea impressão que seu plano de negócio não funcionou. Dessa forma, um arquiteto comercial é o profissional ideal para lhe auxiliar ao longo desse processo.
3. Zonas de exposição (setorização de farmácias)
Destaque a importância das zonas de exposição na farmácia e como elas podem ser utilizadas para aumentar as vendas.
Explique como as zonas de exposição podem ser criadas, destacando a importância de definir as zonas de acordo com os objetivos de vendas e com o perfil dos clientes, e como utilizar o visual merchandising para aumentar as vendas.

O Zoneamento ou Setorização, apesar de ser outra etapa, é trabalhado em conjunto com a parte de fluxograma. O motivo é que para definir o fluxo de quem estará dentro da farmácia deve se saber quais produtos serão trabalhados e qual o melhor lugar para cada um deles.
Dessa forma nós, arquitetos comerciais, conseguimos iniciar os estudos e desenhos do layout. Veja a complexidade de um projeto de farmácia, estamos somente no início e já percebemos a união de diversos fatores para iniciar a estruturação do layout.
Essa etapa é muito importante contar com a participação do proprietário ou gerente geral do estabelecimento. O motivo é que muitas marcas querem saber qual a sua localização dentro do Visual Merchandising da sua loja.
Um produto posicionado na altura dos olhos de quem vai comprar, tem mais chances de vendas que um produto que está abaixo ou acima. E essa chance muitas vezes é disputada pelas marcas de maior impacto no seu negócio.
Tipos de de layout de farmácias:
Existem diversos tipos de farmácias, cada uma com suas particularidades e necessidades específicas. Algumas das principais categorias incluem:
Layout de farmácia de manipulação
Nesse tipo de farmácia, os medicamentos são produzidos sob medida, de acordo com a prescrição médica e as necessidades específicas de cada paciente. O projeto de farmácia deve levar em consideração a área de produção e o armazenamento de insumos, além de contar com uma área de atendimento e exposição de produtos prontos.

Projeto de farmácia tradicional
Esse é o tipo mais comum de farmácia, que comercializa medicamentos industrializados e diversos outros produtos, como cosméticos, produtos de higiene e perfumaria, alimentos e suplementos. O layout de farmácia deve ser pensado de forma a otimizar o espaço para exposição de produtos, com setorização clara e sinalização adequada.

Layout de farmácia pequena ou de conveniência
Esse tipo de farmácia costuma estar localizado em postos de gasolina, shoppings e outros locais de grande circulação, e oferece produtos de conveniência além dos medicamentos e produtos de higiene. O projeto de farmácia deve ser atrativo e prático para o cliente, com foco em produtos de consumo rápido.

Projeto de farmácia de rede
As redes de farmácias possuem diversas filiais, e o layout deve ser padronizado para garantir a identidade visual da marca em todas as unidades. A setorização e exposição de produtos devem ser pensadas de forma a otimizar o espaço e facilitar a experiência de compra dos clientes em todas as lojas da rede.

Bem acho que agora já ficou claro a importância que um layout bem planejado faz para uma farmácia. Mas além do layout existem outros elementos de arquitetura que influenciam bastante para alcançar o resultado do seu planejamento financeiro.
E nós, como queremos te ajudar, vamos dar dicas preciosas para isso.
Qual o tamanho ideal para uma farmácia?
O tamanho ideal depende do modelo de negócio, mas existem referências de mercado que podem ser seguidas de acordo com o seu ponto comercial:
- Farmácia pequena: 30 m² a 80 m²
- Farmácia grande / redes: 120 m² a 200 m²
- Farmácia hospitalar: varia conforme demanda interna, podendo ser compacta (20 m² a 50 m²)
O mais importante não é a metragem, mas um layout estratégico que aproveita cada centímetro. Uma farmácia de 60 m² pode performar melhor que uma de 120 m² se tiver fluxo organizado e exposição inteligente.
O que a Vigilância Sanitária exige para um projeto de farmácia?
É importante sempre consultar o que a legislação do seu munícipio rege, mas, alguns pontos são comuns em relação à Vigilância Sanitária:
Por exemplo: é obrigatório o armazenamento correto para medicamentos sensíveis, balcão com acesso restrito ao farmacêutico, bem como área exclusiva e fechada para medicamentos controlados. Além disso, é importante que tenha identificação clara de cada categoria, iluminação adequada e obrigatoriamente sanitários para os funcionários.
Se você deseja ter um projeto de farmácia em conformidade com todas as regras, entre em contato com a Arquiter e solicite um orçamento sem compromisso!
5 Dicas para tornar a farmácia mais atrativa
Certas escolhas de design podem ajudar a tornar a farmácia mais atraente e convidativa para os clientes. Aqui estão cinco dicas incríveis para tornar a farmácia mais atraente:
Iluminação: A iluminação é uma ferramenta importante no design de interiores e pode influenciar o humor e o comportamento dos clientes. Uma boa iluminação pode destacar as áreas principais da loja, tornando-a mais atraente. A iluminação também pode ser usada para criar um ambiente acolhedor e agradável.
Em áreas de circulação e caixa, recomenda-se uma iluminação mais intensa de 6.500K, para que essas regiões fiquem mais visíveis e fáceis de transitar. Já em espaços onde gostaria de dar destaque a um produto, ou áreas de beleza e perfumaria é interessante criar uma iluminação personalizada entre 3.500K a 4000K.


Cores e materiais
A escolha das cores e materiais pode influenciar a percepção do cliente sobre a farmácia. Cores vibrantes podem chamar a atenção e criar um ambiente mais energético, enquanto cores mais suaves podem transmitir uma sensação de calma e tranquilidade. É importante ressaltar que as cores da marca e sua logo devem estar sempre presentes no ambiente, de forma a deixar bem gravado na cabeça de seu cliente.
Sinalização
A sinalização é importante para orientar os clientes pela loja e garantir que eles encontrem o que precisam com facilidade. Os sinais devem ser claros, legíveis e direcionais, orientando os clientes para as diferentes seções da farmácia.
Lembre-se que essa sinalização deve ser feita em diversos planos, no chão para marcar locais de filas e entendimentos, no teto através de placas suspensas, paredes com publicidade e letra caixa e por último no mobiliário e gôndolas.
Fachada de farmácia
A fachada é o cartão de visitas da farmácia, e deve ser atraente e convidativa para os clientes. É importante investir em um design de fachada que transmita a identidade da marca e atraia a atenção dos clientes, destacando a localização da farmácia.
A fachada também deve ser muito iluminada e com preocupação com a segurança, principalmente em estabelecimentos que funcionam em período noturno.
Acessibilidade
A acessibilidade é um fator importante para os clientes, principalmente aqueles com mobilidade reduzida. É importante garantir que a farmácia seja acessível para todos os clientes, com rampas de acesso, portas largas, corredores amplos e balcões de altura adequada. Tenha em mente que esse item deve contemplar a NBR 9050 e o código de obras do seu município.
Conclusão
O layout é um elemento crucial para o sucesso de uma farmácia, pois influencia diretamente nas vendas, na percepção do cliente sobre a qualidade dos produtos e na fidelização do cliente.
Apesar dos desafios enfrentados pelos proprietários de farmácias, um projeto de layout bem planejado com a nossa ajuda fará toda a diferença para superar esses obstáculos e alcançar o sucesso no mercado. A importância de investir na arquitetura comercial desde o início para diferenciar a farmácia da concorrência e fortalecer a marca, mesmo que o recurso financeiro seja limitado.
Nós sabemos de todas as inseguranças que você como empresário passa ao fazer mudanças em seu negócio, mas também temos dados de que esperar demais ou não mudar por medo fazem com que seu negócio perca dinheiro.
Por isso estamos aqui para te ajudar, colocando em prática no seu negócio de forma personalizada a Metodologia que vai te fazer alcançar seu resultado esperado! Entre em contato e alcance até 30% a mais de faturamento na sua farmácia!
Resumo sobre layout de farmácia
Qual o tamanho ideal para uma farmácia?
O tamanho depende do modelo da sua farmácia e do seu negócio, mas farmácias pequenas têm, geralmente, entre 30m² e 80m². Além disso, farmácias grandes ou de rede podem chegar a ter até 200m².
Como deve ser a organização de uma farmácia?
O uso de setorização inteligente no layout de farmácia é muito importante, bem como a exposição estratégica: produtos de maior giro ficam na altura dos olhos, enquanto itens de maior margem ficam nas pontas de gôndolas.
Quanto fica para montar uma farmácia pequena?
O investimento varia conforme localização, mobiliário, projeto arquitetônico e exigências sanitárias, mas a média no Brasil fica entre: R$ 80 mil para farmácias menores e a partir de R$ 150 mil para farmácias maiores.
